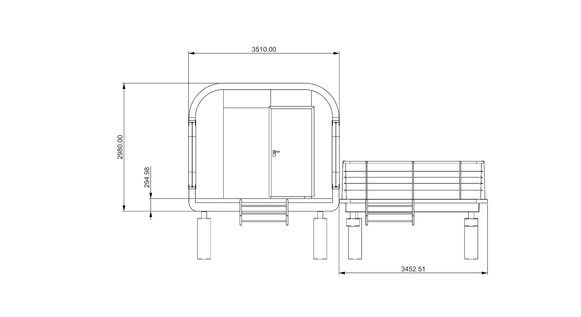
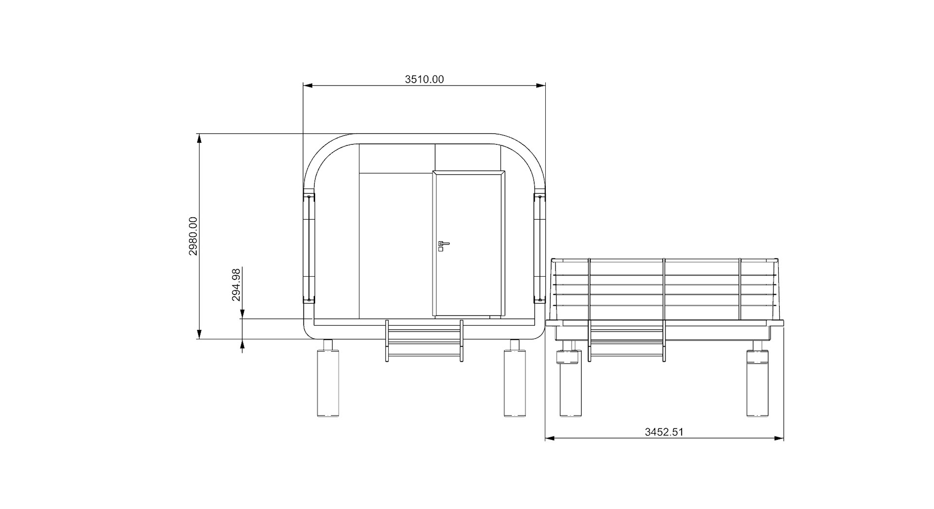
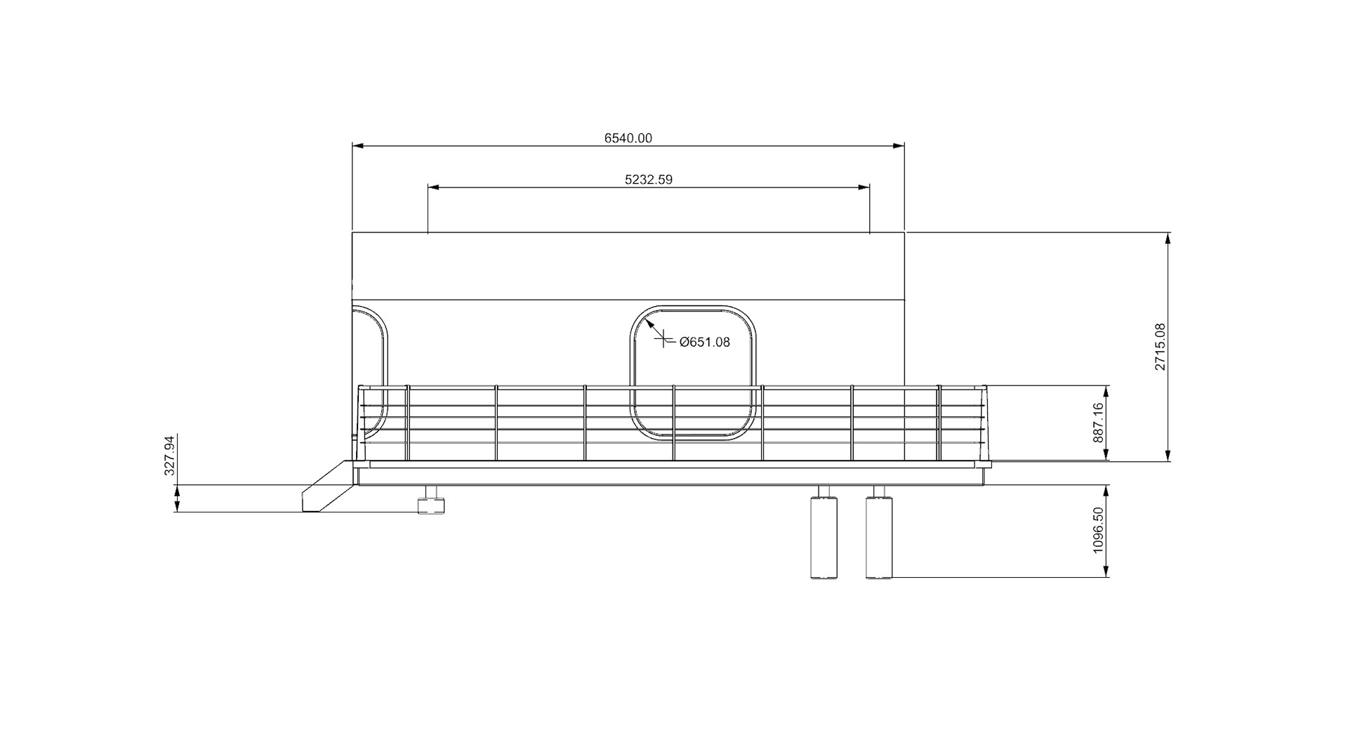
_Technoplace - CABIN TYPE A

This Class A Type cabin is a compact, high-performance dwelling designed to comfortably accommodate up to two occupants. The form is defined by soft, continuous curves and a streamlined envelope, creating a contemporary aesthetic while enhancing structural efficiency and weather resistance. Elevated on a minimal foundation system, the cabin integrates a generous outdoor deck that extends the usable living space and provides a seamless transition between interior and exterior environments.

_ Design

Engineered for rapid assembly and long-term durability, the cabin is fully weatherproof and designed to perform reliably across a wide range of climatic conditions, including harsh and remote environments. Openings are carefully proportioned to maximize daylight while maintaining thermal efficiency and occupant comfort. The modular nature of the design allows for flexible deployment without compromising architectural quality or build integrity.

_Modeling

The entire cabin has been modeled with absolute precision in Rhino3D, enabling exact dimensional control, clean geometry, and manufacturing-ready accuracy across all components. This precise digital workflow ensures alignment between design intent, fabrication, and on-site assembly.
This cabin is designed and manufactured by Technoplace, with all design rights retained by Technoplace.

_ Video #1 : Runway ML

Go to the Youtube channel or watch here.

_Video #2 : TwinMotion

Go to the Youtube channelĀ for the 4K resolution or watch here.

You may also like

Back to Top